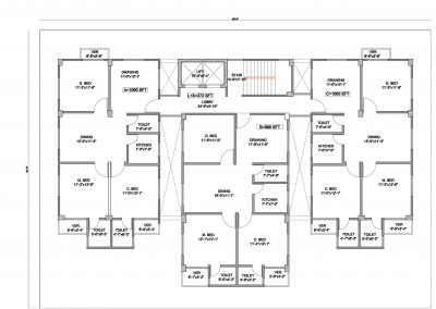
Probal Vally
| Project Name | Probal Vally |
| Project Address | Plot No: 112 & 113, Road- 05, Block – I, Bashundhara R/A, Dhaka |
| Land Area | 08 Katha, |
| Font Road | Front road 25’-0” Feet wide. |
| Per Floor | 03 Unit |
| Storied | 10 Storied |
| Total Flat | 27 No. |
| Size of Flat | 1250 sft. (Per Unit) |
| Number of Car Parking | 22 No. |
| Facing | North. |
Floor Plans
